Skip the navigation and jump to this page's content.

215 Eugenie Street West Unit# 170 Windsor, ON

PROPERTY INFO

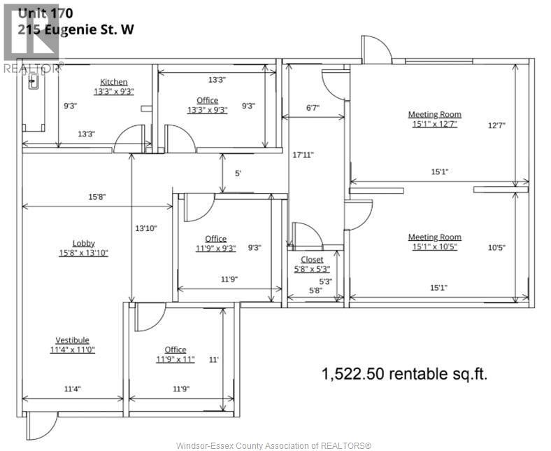
This spacious 1,523 sq. ft. professional office suite is now available for lease. Situated in a central, high-demand location within a prestigious office building, it's surrounded by a variety of complementary businesses and professional services. Enjoy easy access to a wide range of nearby restaurants, shops, and amenities, providing convenience for both employees and clients. Utilities are included in the additional rent. (id:4555)

PROPERTY SPECS

Listing ID 26006779
Address 215 EUGENIE STREET West Unit# 170
City Windsor, ON
Lease $12
Flooring Ceramic/Porcelain
Land Size 381 X
Status For lease

EXTENDED FEATURES

Ownership FreeholdCooling Air ConditionedHeating Forced air, FurnaceHeating Fuel Natural gas Date Listed 2026-04-01 20:03:22
LISTING OFFICE:
Royal LePage Binder Real Estate, Terry Gouin
,
Royal LePage Binder Real Estate, Bill Mastronardi


logo

REQUEST MORE INFORMATION

Loading...